无障碍
简体版| 繁体版
支持IPv6

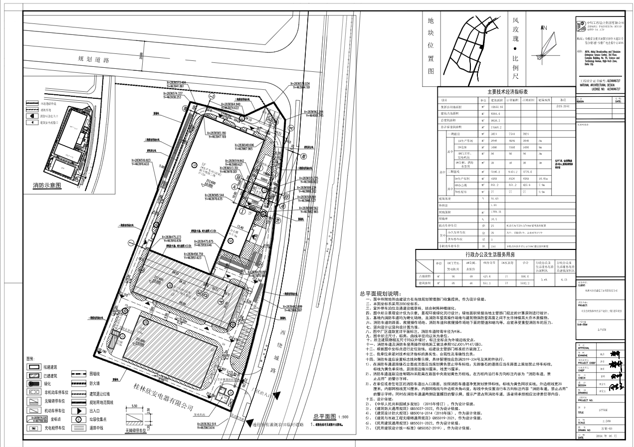
兴安县村级集体经济产业园(二期)建设项目总平面图公示

发布日期: 2024-06-05 09:45

根据《中华人民共和国城乡规划法》的要求,现将《兴安县村级集体经济产业园(二期)建设项目总平面图》予以公示(详见公示网站):                    

该项目位置具体内容详见公示图纸。

指标符合相关规定及规范要求,相关技术经济指标详见附图。

规划地段内利害人关系如有异议,请以书面形式将具体意见(署名真实姓名和有效联系方式)于公示期内送达兴安县自然资源局办公室﹙联系电话:6221368﹚,申请人及利害关系人依法享有申请听证的权利。

公示时间:自公示刊登日起,至顺延满7个工作日止

网址公示地址:http://www.xazf.gov.cn/jjxa/bmgsgg/

现场公示地点:1、兴安县自然资源局一楼

2、兴安县政务大厅

3、拟建项目现场

                                              兴安县自然资源局

                                                  2024年6月5日


文件下载:

111111.png

关联文件: